峰山庁舎2号館の市民利用施設について
おしゃべりをしたり、作業をしたり、読書をしたり、憩いや交流を促進し、市民等の福祉の増進および地域の活性化を目的とした市民利用施設を新しい2号館に整備しました。
開庁時間中は申請不要・無料でのご利用、閉庁時間は、イベントや団体活動などの貸館利用が可能です。申請方法などの詳細は以下をご覧ください。
貸館利用は令和8年5月7日から利用可能です。利用申請は令和8年2月2日から「峰山庁舎2号館1階の峰山市民局」にて受付しております。
| 区分 | 利用時間 | 申請 | 使用料 |
| 自由利用 | 開庁日:9時~16時30分 | 不要 | 無料 |
| 貸館利用 | 開庁日:18時~22時 閉庁日: 9時~22時 |
必要 | 有料 |
【施設ごとの利用時間の早見表はこちら】(PDFファイル:69.6KB)
施設について
備え付けの備品等について、事前確認が必要な場合はお問い合わせください。
備え付け備品の()は配置数。
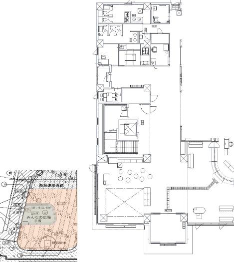
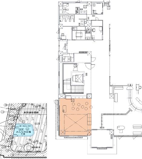
◆ みんなの広場(1階屋外) ※自由利用の対象


開放感のある屋外の憩いスペースです。屋外でのマルシェや地域のイベントなどで活用できる施設です。
- 附属設備:電源設備(100V用,10口)
◆ まちの情報コーナー(1階) ※自由利用の対象


窓を開放すると、みんなの広場とつながる一体空間で、イベント利用にも活用いただける施設です。
- 附属設備:冷暖房設備
- 備え付け備品:スツール(丸イス)(8)、ソファ(1)、壁掛式86型ディスプレイ(HDMIケーブル付き)(1)
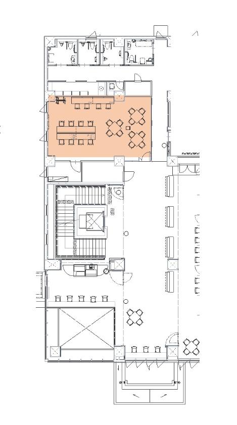
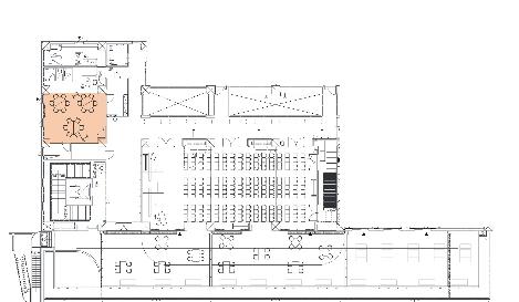
◆ 市民コラボラウンジ(2階) ※自由利用の対象


市民活動や地域交流、研修やワークショップなど、様々な用途で活用できる施設です。
- 収容可能人数:24人
- 附属設備:冷暖房設備
- 備え付け備品:打合せテーブル(4人用)(3)、打合せイス(12)、ハイカウンターテーブル(1)、ハイカウンターイス(8)、カウンターテーブル (1)、カウンターイス(4)、可動式ホワイトボード(マーカーペン・イレーザー付き)(2)、壁掛式55型ディスプレイ(HDMIケーブル付き)(1)
※施設内のカウンターテーブルは移動できません。
◆ まちそらテラス(3階屋外) ※自由利用の対象


空が大きく広がる、開放的な屋外テラスです。植栽に囲まれながら、屋外イベント等に活用できる施設です。231~233会議室の窓を開放することで屋内との一体利用も可能です。
- 備え付け備品:屋外テーブル(4人用)(6)屋外イス(24)、背付きベンチ(3人用)(6)、背無しベンチ用テーブル(4)、背無しベンチ(2人用)(8)
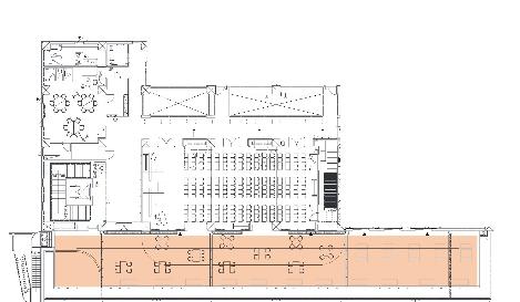
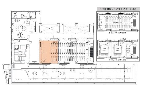
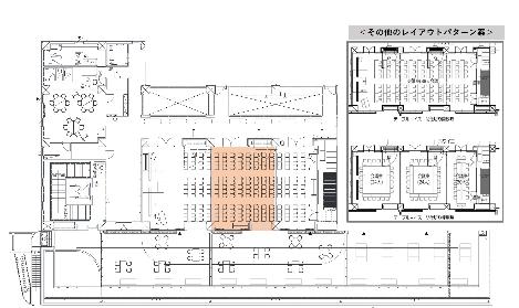
◆ 231会議室(3階) ※貸館利用のみ

パーテーション壁を開放することで、最大231、232、233会議室の3部屋がつながり、1つの部屋にすることができます。
- 収容可能人数:24人(ロの字レイアウトの場合)長机(12台)、椅子(24脚)
- 附属設備:冷暖房設備
- 備え付け備品:可動式ホワイトボード(マーカーペン・イレーザー付き)(1)、壁面投影式プロジェクター(操作設備を含む)(2)
※会議用テーブル、会議用イス及びチェアポーターは以下の共同会議室の備え付け備品にある数から使用数を申込時にお申しつけください。
◆ 232会議室(3階) ※貸館利用のみ

パーテーション壁を開放することで、最大231、232、233会議室の3部屋がつながり、1つの部屋にすることができます。
- 収容可能人数:24人(ロの字レイアウトの場合)長机(12台)、椅子(24脚)
- 附属設備:冷暖房設備
- 備え付け備品:可動式ホワイトボード(マーカーペン・イレーザー付き)(1)、可動式55型ディスプレイ (1)
※会議用テーブル、会議用イス及びチェアポーターは以下の共同会議室の備え付け備品にある数から使用数を申込時にお申しつけください。
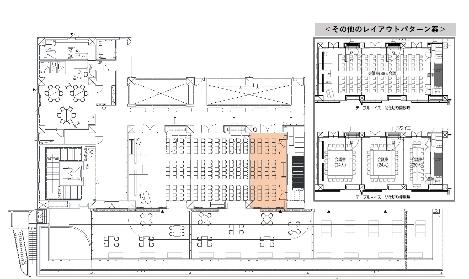
◆ 233会議室(3階) ※貸館利用のみ

パーテーション壁を開放することで、最大231、232、233会議室の3部屋がつながり、1つの部屋にすることができます。
- 収容可能人数:20人(ロの字レイアウトの場合)長机(10台)、椅子(20脚)
- 附属設備:冷暖房設備
- 備え付け備品:可動式ホワイトボード(マーカーペン・イレーザー付き)(1)、可動式55型ディスプレイ (1)
※会議用テーブル、会議用イス及びチェアポーターは以下の共同会議室の備え付け備品にある数から使用数を申込時にお申しつけください。
◆ 共同会議室の備品(231,232,233会議室を接続し使用する場合)
1 共同会議室は、231会議室、232会議室及び233会議室を同時に使用する場合のことをいいます。各部屋を組合せて使用する場合は、各部屋の使用料を合計してください。
2 共同会議室を231会議室、232会議室及び233会議室として個別に使用する場合においては、会議用テーブル、会議用イス及びチェアポーターに限り、別表中「共同会議室」に係る会議用テーブル、会議用イス及びチェアポーターの区分から使用数を申請するものとします。
- 備え付け備品:会議用テーブル(45)、会議用イス(210)、チェアポーター(30脚用)(7)、可動式ステージ(ステージスカート付き)(3)、踏み台(ステージ用)(2)、演台(1人用)(1)、演台(2人用)(1)、マイクスタンド(フロア型)(3)、マイクスタンド(卓上型)(3) 、ワイヤレスマイク(ハンド型)(3)、(ワイヤレスマイク(タイピン型)(3)、ケーブル付きマイク(2)
◆ 234会議室(3階) ※貸館利用のみ


会議やワークショップ、研修などに活用できる施設です。231会議室等のイベントの控室としても活用できます。
- 収容可能人数:18人
- 附属設備:冷暖房設備
- 備え付け備品:打合せテーブル(3人用)(6)、打合せイス(18)、可動式ホワイトボード(マーカーペン・イレーザー付き)(2)、壁掛式55型ディスプレイ(HDMIケーブル付き)(1)
貸館利用(閉庁時間)のご案内
貸館時間
| 開庁日:夜間(18時~22時) 閉庁日:昼間(9時~18時) 夜間(18時~22時) |
休館日
年末年始(12月28日~1月3日)、施設の管理上必要がある時
使用料金表 (表内料金は税抜き表示)
| 利用施設 | 単位 | 昼間 | 夜間 | ||
| (9:00~18:00) | (18:00~22:00) | ||||
| まちの情報コーナー | 施設 | 1時間 | 190円 | 210円 | |
| 冷暖房設備 | 1時間 | 95円 | 105円 | ||
| 市民コラボラウンジ | 施設 | 1時間 | 190円 | 210円 | |
| 冷暖房設備 | 1時間 | 95円 | 105円 | ||
| まちそらテラス | 施設 | 1時間 | 1,020円 | 1,070円 | |
| 共同会議室 | 施設 | 1時間 | 890円 | 980円 | |
| 冷暖房設備 | 1時間 | 445円 | 490円 | ||
| 231会議室 | 施設 | 1時間 | 350円 | 380円 | |
| 冷暖房設備 | 1時間 | 175円 | 190円 | ||
| 232会議室 | 施設 | 1時間 | 330円 | 370円 | |
| 冷暖房設備 | 1時間 | 165円 | 185円 | ||
| 233会議室 | 施設 | 1時間 | 210円 | 230円 | |
| 冷暖房設備 | 1時間 | 105円 | 115円 | ||
| 234会議室 | 施設 | 1時間 | 180円 | 190円 | |
| 冷暖房設備 | 1時間 | 90円 | 95円 | ||
| みんなの広場 | 施設 | 1時間 | 190円 | 210円 | |
| 電源設備 | 1時間 | 95円 | 105円 | ||
| ※冷暖房設備及び電源設備(みんなの広場)の使用料は、施設使用料の1/2 | |||||
ご利用の流れ
(1)予約→(2)「利用申請書」提出→(3)料金支払→(4)利用許可→(5)利用→(6)片付け・清掃→(7)終了
(1)予約
- 峰山市民局へ電話(電話:0772-69-0711)、もしくは2号館1階窓口にて、使用に関すること、空き状況をお問い合わせいただけます。
- 受付時間は原則、利用する日の3か月前の日の属する月の初日(月の初日が閉庁日の場合は、以降の開庁日)より利用日の前日の峰山庁舎2号館の開庁時間内までとなります。
- 「先着順」です。市役所の閉庁日に利用する場合は、利用する日の1週間前までを目途にお申し込みください。
- 受付時間:年末年始・土曜日・日曜日・祝日をのぞく平日の9時~16時30分
- 閉庁時間の申請はしていただけません。予めご了承ください。
(2)「利用申請書」の提出
「京丹後市役所峰山庁舎2号館利用申請書」(峰山市民局窓口にてお渡しすることも可能)を提出します。
利用日ごとに申請書が必要です。
(3)料金支払
納付書にて、市役所窓口で使用料の支払いをします。
(4)利用許可
(2)及び(3)が完了後、利用を許可し、「京丹後市役所峰山庁舎2号館利用許可書」を発行します。
(5)利用
利用前に、宿直管理室の管理人に利用許可書を提示してからご利用ください。
(6)片付け・清掃
利用時に出たゴミや汚れ等を清掃し、机や椅子等は元の位置に整えてください。
(7)終了
利用後は、管理人に利用終了の連絡をしてください。
注意事項
不明点についてはFAQ(よくある質問)を確認ください。
その他の質問は、峰山市民局へご連絡をお願いします。(電話:0772-69-0711)
峰山庁舎2号館では、次の場合は、利用の許可はできません。すでに許可している場合でも、取り消す場合があります。
- その利用が施設等の設置の目的に反するとき。
- その利用が公の秩序または善良な風俗を乱すおそれがあるとき。
- その利用が施設等を損傷し、または滅失するおそれがあるとき。
- 上記のほか、施設等の管理上支障があるとき。
利用にあたっては、次の事項を守ってください。
- 利用許可を受けた目的以外に利用したり、利用の権利を他人に譲ることはできません。
- 近隣住民に支障がでるような大きな音や声は出さないでください。
- 施設・設備等は大切に使ってください。損傷または滅失した場合は、損害を賠償していただきます。
- 壁・柱等にはり紙、釘打ち等はしないでください。
- 峰山庁舎2号館の外壁への横断幕等の掲示は、建物の壁面と同様に禁止しています。
- 施設内での火気等を利用や喫煙、飲酒(許可を得たアルコール類の販売は可)は一切禁止しています。喫煙については、指定の場所でお願いします。
- ゴミは利用者がお持ち帰りください。
- 利用後は、ゴミや汚れ等を清掃し、机や椅子等を元の位置に整えてください。
FAQ(よくある質問)
1 自由利用(開庁時間)について
Q1. 誰でも利用できますか?
A. 市民の方、市民グループ、事業者の方など、どなたでも利用できます。ただし、公序良俗に反する活動や、寄附の募集、物品の販売、飲食物等の提供、広告物の提示、他の利用者の迷惑となる利用等はできません。
Q2. 貸館利用と、開庁時間の自由利用は何が違いますか?
A.平日の開庁時間は自由利用のみとなります(231~234会議室は対象外)。予約不要で利用できます。
閉庁時間に利用する場合は、貸館利用の申請が必要です。利用時間等に応じて使用料がかかります。
令和8年2月現在の開庁時間:午前9時から午後4時30分まで
Q3. 大人数での利用は自由利用でもできますか?
A. 10人程度を目安として譲り合ってご利用ください。人数が多い、スペースを占有する、事前告知が必要な場合は閉庁時間の貸館申請をお願いします。
Q4. 飲食はできますか?
A. ペットボトル飲料や軽食などの飲食は可能です。
強いにおいが出るものや、汚れが広がるものはご遠慮いただき、飲食後のごみ等はお持ち帰りください。
公共性の高い本施設におきましては、飲酒に伴うトラブルを未然に防ぎ、社会通念上の秩序維持を図る必要がありますので、飲酒は禁止させていただいております。
Q5. 喫煙できる場所はありますか?
A. 峰山庁舎2号館の北側(1号館東側)に喫煙スペースがございます。指定された場所でのみの喫煙にご協力ください。その他敷地内での喫煙は禁止させていただいております。
2. 貸館利用(閉庁時間)について
Q1. 誰でも貸館利用を申請できますか?
A. 市民、市民団体、企業・事業者など、どなたでも申請できます。
Q2. どこに申請すればよいですか?
「京丹後市役所峰山庁舎2号館利用申請書」(峰山市民局窓口にてお渡しすることも可能)を提出します。
利用日ごとに申請書が必要です。
Q3. 利用の取消し、変更したい場合はどうすれば良いですか?
A. 峰山市民局へご連絡をお願いします。(電話:0772-69-0711)
使用料を納付後に利用を取りやめた場合は、使用料の還付は行いません。
ただし、市長において特別の事由(災害等)があると認めるときは、この限りではありません。
Q4. 音の出る活動はできますか?
A. イベント実施前に近隣住民等への周知等、配慮のうえご利用ください。
Q5. 備品の貸出はありますか?
A. 机・イス・備え付けのディスプレイなど、記載している備品は無料で自由に利用できます。
Q6. 駐車場はありますか?
峰山庁舎正面の来庁者駐車場をご利用ください。(全130台のうち車椅子用3台)
駐車台数に限りがあるため、お車の乗り合わせや公共交通機関等によりお越しください。
※路上駐車、点字ブロック上の駐車、駐車枠の無い場所等への駐車は、ご遠慮ください。
更新日:2026年02月02日








